LOVELY HOME. OUTSTANDING VIEWS. BEAUTIFUL GARDENS.
Sold
Location
108 Learmonth Drive
Kambah ACT 2902
Details
3
2
1
EER: 1.0
House
Auction Saturday, 31 Oct 01:00 PM On Site
Set opposite the Urambi Hills Nature Reserve, this beautifully maintained home surprises with its features. A functional layout and well positioned windows ensure that each space in the home is bathed in natural light.
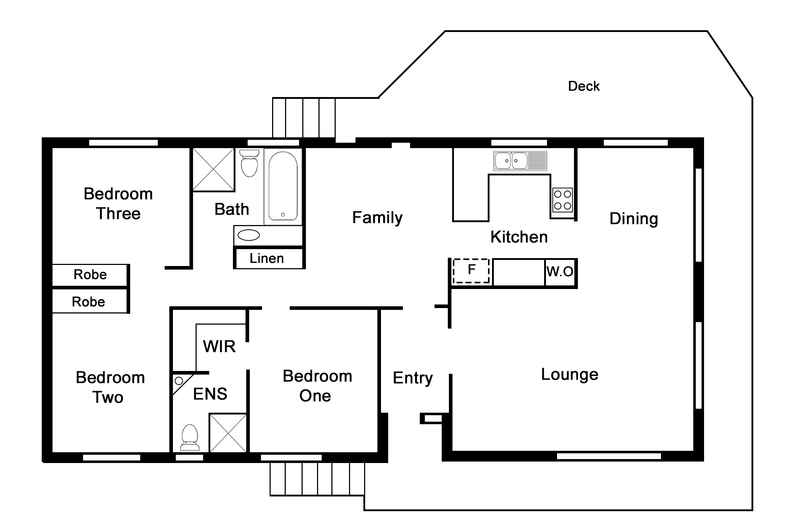
With three well-sized bedrooms, large L-shaped lounge and dining area, family room, kitchen and modern bathrooms and a covered outdoor entertaining space, there is not much to do other than move in!
And then you step out onto the wrap around verandah . the 180 degree views are incredible. A commanding sight of Mt Taylor and then beyond to Black Mountain Tower are prominent features.
The home's surrounds are beautiful with defined garden beds and mature plantings cleverly making the most of the large backyard.
Close to the Tuggeranong Town Centre and transport options the home caters for all needs.
I look forward to meeting you at the property!
STANDOUTS:
• Outstanding views
• Perfectly located opposite nature reserve
• Wonderful gardens with beautiful plantings
• Delightful three-bedroom home
• Sun-drenched L-shaped lounge & dining space
• Wrap around verandah
• Family room with sliding door access to outdoor entertaining
• Kitchen includes gas cooktop, electric wall oven & dishwasher
• Large main bedroom with walk-in robe & ensuite
• Two additional bedrooms with built-in robes
• Bathroom includes shower, bath, vanity & toilet
• Large covered entertaining area
• Gas wall furnance
• Split-system air-conditioning
• Generous laundry
• Single garage with workshop
• Extensive under-house storage
• Close to public transport
• Short drive to Tuggeranong shopping precinct
STATISTICS:
EER: 1.0
Home size: 116m2
Garage/Laundry size: 35m2
Construction: 1981
Land size: 872m2
Land value: $392,000
Rates: $688 per quarter
Land Tax: $1,042 per quarter (only applicable if rented)
Rent estimate: $560 to $590 per week
* Please note, all figures are approximate
Read MoreWith three well-sized bedrooms, large L-shaped lounge and dining area, family room, kitchen and modern bathrooms and a covered outdoor entertaining space, there is not much to do other than move in!
And then you step out onto the wrap around verandah . the 180 degree views are incredible. A commanding sight of Mt Taylor and then beyond to Black Mountain Tower are prominent features.
The home's surrounds are beautiful with defined garden beds and mature plantings cleverly making the most of the large backyard.
Close to the Tuggeranong Town Centre and transport options the home caters for all needs.
I look forward to meeting you at the property!
STANDOUTS:
• Outstanding views
• Perfectly located opposite nature reserve
• Wonderful gardens with beautiful plantings
• Delightful three-bedroom home
• Sun-drenched L-shaped lounge & dining space
• Wrap around verandah
• Family room with sliding door access to outdoor entertaining
• Kitchen includes gas cooktop, electric wall oven & dishwasher
• Large main bedroom with walk-in robe & ensuite
• Two additional bedrooms with built-in robes
• Bathroom includes shower, bath, vanity & toilet
• Large covered entertaining area
• Gas wall furnance
• Split-system air-conditioning
• Generous laundry
• Single garage with workshop
• Extensive under-house storage
• Close to public transport
• Short drive to Tuggeranong shopping precinct
STATISTICS:
EER: 1.0
Home size: 116m2
Garage/Laundry size: 35m2
Construction: 1981
Land size: 872m2
Land value: $392,000
Rates: $688 per quarter
Land Tax: $1,042 per quarter (only applicable if rented)
Rent estimate: $560 to $590 per week
* Please note, all figures are approximate
Inspect
Contact agent
Listing agent
Set opposite the Urambi Hills Nature Reserve, this beautifully maintained home surprises with its features. A functional layout and well positioned windows ensure that each space in the home is bathed in natural light.
With three well-sized bedrooms, large L-shaped lounge and dining area, family room, kitchen and modern bathrooms and a covered outdoor entertaining space, there is not much to do other than move in!
And then you step out onto the wrap around verandah . the 180 degree views are incredible. A commanding sight of Mt Taylor and then beyond to Black Mountain Tower are prominent features.
The home's surrounds are beautiful with defined garden beds and mature plantings cleverly making the most of the large backyard.
Close to the Tuggeranong Town Centre and transport options the home caters for all needs.
I look forward to meeting you at the property!
STANDOUTS:
• Outstanding views
• Perfectly located opposite nature reserve
• Wonderful gardens with beautiful plantings
• Delightful three-bedroom home
• Sun-drenched L-shaped lounge & dining space
• Wrap around verandah
• Family room with sliding door access to outdoor entertaining
• Kitchen includes gas cooktop, electric wall oven & dishwasher
• Large main bedroom with walk-in robe & ensuite
• Two additional bedrooms with built-in robes
• Bathroom includes shower, bath, vanity & toilet
• Large covered entertaining area
• Gas wall furnance
• Split-system air-conditioning
• Generous laundry
• Single garage with workshop
• Extensive under-house storage
• Close to public transport
• Short drive to Tuggeranong shopping precinct
STATISTICS:
EER: 1.0
Home size: 116m2
Garage/Laundry size: 35m2
Construction: 1981
Land size: 872m2
Land value: $392,000
Rates: $688 per quarter
Land Tax: $1,042 per quarter (only applicable if rented)
Rent estimate: $560 to $590 per week
* Please note, all figures are approximate
Read MoreWith three well-sized bedrooms, large L-shaped lounge and dining area, family room, kitchen and modern bathrooms and a covered outdoor entertaining space, there is not much to do other than move in!
And then you step out onto the wrap around verandah . the 180 degree views are incredible. A commanding sight of Mt Taylor and then beyond to Black Mountain Tower are prominent features.
The home's surrounds are beautiful with defined garden beds and mature plantings cleverly making the most of the large backyard.
Close to the Tuggeranong Town Centre and transport options the home caters for all needs.
I look forward to meeting you at the property!
STANDOUTS:
• Outstanding views
• Perfectly located opposite nature reserve
• Wonderful gardens with beautiful plantings
• Delightful three-bedroom home
• Sun-drenched L-shaped lounge & dining space
• Wrap around verandah
• Family room with sliding door access to outdoor entertaining
• Kitchen includes gas cooktop, electric wall oven & dishwasher
• Large main bedroom with walk-in robe & ensuite
• Two additional bedrooms with built-in robes
• Bathroom includes shower, bath, vanity & toilet
• Large covered entertaining area
• Gas wall furnance
• Split-system air-conditioning
• Generous laundry
• Single garage with workshop
• Extensive under-house storage
• Close to public transport
• Short drive to Tuggeranong shopping precinct
STATISTICS:
EER: 1.0
Home size: 116m2
Garage/Laundry size: 35m2
Construction: 1981
Land size: 872m2
Land value: $392,000
Rates: $688 per quarter
Land Tax: $1,042 per quarter (only applicable if rented)
Rent estimate: $560 to $590 per week
* Please note, all figures are approximate

Location
108 Learmonth Drive
Kambah ACT 2902
Details
3
2
1
EER: 1.0
House
Auction Saturday, 31 Oct 01:00 PM On Site
Set opposite the Urambi Hills Nature Reserve, this beautifully maintained home surprises with its features. A functional layout and well positioned windows ensure that each space in the home is bathed in natural light.
With three well-sized bedrooms, large L-shaped lounge and dining area, family room, kitchen and modern bathrooms and a covered outdoor entertaining space, there is not much to do other than move in!
And then you step out onto the wrap around verandah . the 180 degree views are incredible. A commanding sight of Mt Taylor and then beyond to Black Mountain Tower are prominent features.
The home's surrounds are beautiful with defined garden beds and mature plantings cleverly making the most of the large backyard.
Close to the Tuggeranong Town Centre and transport options the home caters for all needs.
I look forward to meeting you at the property!
STANDOUTS:
• Outstanding views
• Perfectly located opposite nature reserve
• Wonderful gardens with beautiful plantings
• Delightful three-bedroom home
• Sun-drenched L-shaped lounge & dining space
• Wrap around verandah
• Family room with sliding door access to outdoor entertaining
• Kitchen includes gas cooktop, electric wall oven & dishwasher
• Large main bedroom with walk-in robe & ensuite
• Two additional bedrooms with built-in robes
• Bathroom includes shower, bath, vanity & toilet
• Large covered entertaining area
• Gas wall furnance
• Split-system air-conditioning
• Generous laundry
• Single garage with workshop
• Extensive under-house storage
• Close to public transport
• Short drive to Tuggeranong shopping precinct
STATISTICS:
EER: 1.0
Home size: 116m2
Garage/Laundry size: 35m2
Construction: 1981
Land size: 872m2
Land value: $392,000
Rates: $688 per quarter
Land Tax: $1,042 per quarter (only applicable if rented)
Rent estimate: $560 to $590 per week
* Please note, all figures are approximate
Read MoreWith three well-sized bedrooms, large L-shaped lounge and dining area, family room, kitchen and modern bathrooms and a covered outdoor entertaining space, there is not much to do other than move in!
And then you step out onto the wrap around verandah . the 180 degree views are incredible. A commanding sight of Mt Taylor and then beyond to Black Mountain Tower are prominent features.
The home's surrounds are beautiful with defined garden beds and mature plantings cleverly making the most of the large backyard.
Close to the Tuggeranong Town Centre and transport options the home caters for all needs.
I look forward to meeting you at the property!
STANDOUTS:
• Outstanding views
• Perfectly located opposite nature reserve
• Wonderful gardens with beautiful plantings
• Delightful three-bedroom home
• Sun-drenched L-shaped lounge & dining space
• Wrap around verandah
• Family room with sliding door access to outdoor entertaining
• Kitchen includes gas cooktop, electric wall oven & dishwasher
• Large main bedroom with walk-in robe & ensuite
• Two additional bedrooms with built-in robes
• Bathroom includes shower, bath, vanity & toilet
• Large covered entertaining area
• Gas wall furnance
• Split-system air-conditioning
• Generous laundry
• Single garage with workshop
• Extensive under-house storage
• Close to public transport
• Short drive to Tuggeranong shopping precinct
STATISTICS:
EER: 1.0
Home size: 116m2
Garage/Laundry size: 35m2
Construction: 1981
Land size: 872m2
Land value: $392,000
Rates: $688 per quarter
Land Tax: $1,042 per quarter (only applicable if rented)
Rent estimate: $560 to $590 per week
* Please note, all figures are approximate
Inspect
Contact agent











































