FUTURE HOME IN 2-3 YEARS OR INVESTMENT?
Sold
Location
Watson ACT 2602
Details
3
2
2
EER: 5.5
Townhouse
Sold
Note: Contracts cannot exchange until July 20/21. This is a FY 21/22 sale.
With this two-storey, three-bedroom ensuite townhouse, the DHA option is already exercised, which means you could find this makes the perfect purchase for your future home in 2-3 years. Speak to your Tax Adviser about 100% of the ACT stamp duty being claimed as a tax deduction. Another option is to continue renting the property after the lease expires with either DHA or to the private market as part of your investment portfolio.
DHA Lease: 29/06/2009 to 28/6/2024
Lease Options: Already Exercised
Right to Vary Available: Minus 1 x 12 month reduction (at DHA discretion only)
Gross Rent $650 per week with annual reviews
Management Fee: 13% includes GST
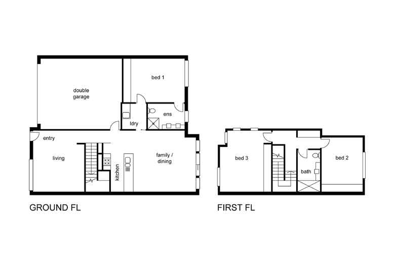
There are many different floorplans in this complex - and this is by far the best model with one of the largest yards. The king-sized master bedroom and ensuite is on the ground floor plus two living areas, with the remaining two bedrooms upstairs.
Features Include:
- Three bedroom with ensuite, two-storey townhouse
- The ground floor doorways and passages cater for individuals with impaired mobility
- Caesar stone bench tops
- Kitchen with stainless steel appliances
- Master bedroom ensuite with built-in robe
- Ensuite with double vanity and stone benchtop
- Bedrooms 2 and 3 upstairs have built-in robes
- Ducted reverse-cycle air conditioning and heating
- Double lock up garage with automatic control and internal access
- NBN connected
- Huge yard of 110m2
- Covered entertaining area
- Rheem continuous infinity gas hot water
- Excellent private and public schools nearby
- Easy access to Dickson and Watson shops
- Walking distance to Light Rail and Canberra CBD.
EER: 5.5
Body Corporate: $1,071 per quarter
Rates: $1,596 per annum
Land Tax: $1,929 per annum
Living space: 148m2
Garage: 38m2
Courtyard: 110m2
Total Residence: 296m2
This property is for sale on behalf of a Defence Housing Australia lessor and has a Defence Housing Australia lease in place. Visit dha.gov.au to read about the benefits of investing in Defence Housing Australia property
Read MoreWith this two-storey, three-bedroom ensuite townhouse, the DHA option is already exercised, which means you could find this makes the perfect purchase for your future home in 2-3 years. Speak to your Tax Adviser about 100% of the ACT stamp duty being claimed as a tax deduction. Another option is to continue renting the property after the lease expires with either DHA or to the private market as part of your investment portfolio.
DHA Lease: 29/06/2009 to 28/6/2024
Lease Options: Already Exercised
Right to Vary Available: Minus 1 x 12 month reduction (at DHA discretion only)
Gross Rent $650 per week with annual reviews
Management Fee: 13% includes GST
There are many different floorplans in this complex - and this is by far the best model with one of the largest yards. The king-sized master bedroom and ensuite is on the ground floor plus two living areas, with the remaining two bedrooms upstairs.
Features Include:
- Three bedroom with ensuite, two-storey townhouse
- The ground floor doorways and passages cater for individuals with impaired mobility
- Caesar stone bench tops
- Kitchen with stainless steel appliances
- Master bedroom ensuite with built-in robe
- Ensuite with double vanity and stone benchtop
- Bedrooms 2 and 3 upstairs have built-in robes
- Ducted reverse-cycle air conditioning and heating
- Double lock up garage with automatic control and internal access
- NBN connected
- Huge yard of 110m2
- Covered entertaining area
- Rheem continuous infinity gas hot water
- Excellent private and public schools nearby
- Easy access to Dickson and Watson shops
- Walking distance to Light Rail and Canberra CBD.
EER: 5.5
Body Corporate: $1,071 per quarter
Rates: $1,596 per annum
Land Tax: $1,929 per annum
Living space: 148m2
Garage: 38m2
Courtyard: 110m2
Total Residence: 296m2
This property is for sale on behalf of a Defence Housing Australia lessor and has a Defence Housing Australia lease in place. Visit dha.gov.au to read about the benefits of investing in Defence Housing Australia property
Inspect
Contact agent
Listing agent
Note: Contracts cannot exchange until July 20/21. This is a FY 21/22 sale.
With this two-storey, three-bedroom ensuite townhouse, the DHA option is already exercised, which means you could find this makes the perfect purchase for your future home in 2-3 years. Speak to your Tax Adviser about 100% of the ACT stamp duty being claimed as a tax deduction. Another option is to continue renting the property after the lease expires with either DHA or to the private market as part of your investment portfolio.
DHA Lease: 29/06/2009 to 28/6/2024
Lease Options: Already Exercised
Right to Vary Available: Minus 1 x 12 month reduction (at DHA discretion only)
Gross Rent $650 per week with annual reviews
Management Fee: 13% includes GST
There are many different floorplans in this complex - and this is by far the best model with one of the largest yards. The king-sized master bedroom and ensuite is on the ground floor plus two living areas, with the remaining two bedrooms upstairs.
Features Include:
- Three bedroom with ensuite, two-storey townhouse
- The ground floor doorways and passages cater for individuals with impaired mobility
- Caesar stone bench tops
- Kitchen with stainless steel appliances
- Master bedroom ensuite with built-in robe
- Ensuite with double vanity and stone benchtop
- Bedrooms 2 and 3 upstairs have built-in robes
- Ducted reverse-cycle air conditioning and heating
- Double lock up garage with automatic control and internal access
- NBN connected
- Huge yard of 110m2
- Covered entertaining area
- Rheem continuous infinity gas hot water
- Excellent private and public schools nearby
- Easy access to Dickson and Watson shops
- Walking distance to Light Rail and Canberra CBD.
EER: 5.5
Body Corporate: $1,071 per quarter
Rates: $1,596 per annum
Land Tax: $1,929 per annum
Living space: 148m2
Garage: 38m2
Courtyard: 110m2
Total Residence: 296m2
This property is for sale on behalf of a Defence Housing Australia lessor and has a Defence Housing Australia lease in place. Visit dha.gov.au to read about the benefits of investing in Defence Housing Australia property
Read MoreWith this two-storey, three-bedroom ensuite townhouse, the DHA option is already exercised, which means you could find this makes the perfect purchase for your future home in 2-3 years. Speak to your Tax Adviser about 100% of the ACT stamp duty being claimed as a tax deduction. Another option is to continue renting the property after the lease expires with either DHA or to the private market as part of your investment portfolio.
DHA Lease: 29/06/2009 to 28/6/2024
Lease Options: Already Exercised
Right to Vary Available: Minus 1 x 12 month reduction (at DHA discretion only)
Gross Rent $650 per week with annual reviews
Management Fee: 13% includes GST
There are many different floorplans in this complex - and this is by far the best model with one of the largest yards. The king-sized master bedroom and ensuite is on the ground floor plus two living areas, with the remaining two bedrooms upstairs.
Features Include:
- Three bedroom with ensuite, two-storey townhouse
- The ground floor doorways and passages cater for individuals with impaired mobility
- Caesar stone bench tops
- Kitchen with stainless steel appliances
- Master bedroom ensuite with built-in robe
- Ensuite with double vanity and stone benchtop
- Bedrooms 2 and 3 upstairs have built-in robes
- Ducted reverse-cycle air conditioning and heating
- Double lock up garage with automatic control and internal access
- NBN connected
- Huge yard of 110m2
- Covered entertaining area
- Rheem continuous infinity gas hot water
- Excellent private and public schools nearby
- Easy access to Dickson and Watson shops
- Walking distance to Light Rail and Canberra CBD.
EER: 5.5
Body Corporate: $1,071 per quarter
Rates: $1,596 per annum
Land Tax: $1,929 per annum
Living space: 148m2
Garage: 38m2
Courtyard: 110m2
Total Residence: 296m2
This property is for sale on behalf of a Defence Housing Australia lessor and has a Defence Housing Australia lease in place. Visit dha.gov.au to read about the benefits of investing in Defence Housing Australia property
Location
Watson ACT 2602
Details
3
2
2
EER: 5.5
Townhouse
Sold
Note: Contracts cannot exchange until July 20/21. This is a FY 21/22 sale.
With this two-storey, three-bedroom ensuite townhouse, the DHA option is already exercised, which means you could find this makes the perfect purchase for your future home in 2-3 years. Speak to your Tax Adviser about 100% of the ACT stamp duty being claimed as a tax deduction. Another option is to continue renting the property after the lease expires with either DHA or to the private market as part of your investment portfolio.
DHA Lease: 29/06/2009 to 28/6/2024
Lease Options: Already Exercised
Right to Vary Available: Minus 1 x 12 month reduction (at DHA discretion only)
Gross Rent $650 per week with annual reviews
Management Fee: 13% includes GST
There are many different floorplans in this complex - and this is by far the best model with one of the largest yards. The king-sized master bedroom and ensuite is on the ground floor plus two living areas, with the remaining two bedrooms upstairs.
Features Include:
- Three bedroom with ensuite, two-storey townhouse
- The ground floor doorways and passages cater for individuals with impaired mobility
- Caesar stone bench tops
- Kitchen with stainless steel appliances
- Master bedroom ensuite with built-in robe
- Ensuite with double vanity and stone benchtop
- Bedrooms 2 and 3 upstairs have built-in robes
- Ducted reverse-cycle air conditioning and heating
- Double lock up garage with automatic control and internal access
- NBN connected
- Huge yard of 110m2
- Covered entertaining area
- Rheem continuous infinity gas hot water
- Excellent private and public schools nearby
- Easy access to Dickson and Watson shops
- Walking distance to Light Rail and Canberra CBD.
EER: 5.5
Body Corporate: $1,071 per quarter
Rates: $1,596 per annum
Land Tax: $1,929 per annum
Living space: 148m2
Garage: 38m2
Courtyard: 110m2
Total Residence: 296m2
This property is for sale on behalf of a Defence Housing Australia lessor and has a Defence Housing Australia lease in place. Visit dha.gov.au to read about the benefits of investing in Defence Housing Australia property
Read MoreWith this two-storey, three-bedroom ensuite townhouse, the DHA option is already exercised, which means you could find this makes the perfect purchase for your future home in 2-3 years. Speak to your Tax Adviser about 100% of the ACT stamp duty being claimed as a tax deduction. Another option is to continue renting the property after the lease expires with either DHA or to the private market as part of your investment portfolio.
DHA Lease: 29/06/2009 to 28/6/2024
Lease Options: Already Exercised
Right to Vary Available: Minus 1 x 12 month reduction (at DHA discretion only)
Gross Rent $650 per week with annual reviews
Management Fee: 13% includes GST
There are many different floorplans in this complex - and this is by far the best model with one of the largest yards. The king-sized master bedroom and ensuite is on the ground floor plus two living areas, with the remaining two bedrooms upstairs.
Features Include:
- Three bedroom with ensuite, two-storey townhouse
- The ground floor doorways and passages cater for individuals with impaired mobility
- Caesar stone bench tops
- Kitchen with stainless steel appliances
- Master bedroom ensuite with built-in robe
- Ensuite with double vanity and stone benchtop
- Bedrooms 2 and 3 upstairs have built-in robes
- Ducted reverse-cycle air conditioning and heating
- Double lock up garage with automatic control and internal access
- NBN connected
- Huge yard of 110m2
- Covered entertaining area
- Rheem continuous infinity gas hot water
- Excellent private and public schools nearby
- Easy access to Dickson and Watson shops
- Walking distance to Light Rail and Canberra CBD.
EER: 5.5
Body Corporate: $1,071 per quarter
Rates: $1,596 per annum
Land Tax: $1,929 per annum
Living space: 148m2
Garage: 38m2
Courtyard: 110m2
Total Residence: 296m2
This property is for sale on behalf of a Defence Housing Australia lessor and has a Defence Housing Australia lease in place. Visit dha.gov.au to read about the benefits of investing in Defence Housing Australia property
Inspect
Contact agent







