BAM BAM Bedrock I mean Bedbrook
Just like back in the day when the Flinstones captured our attention, so will this four bedroom, two bathroom family home in Coombs.
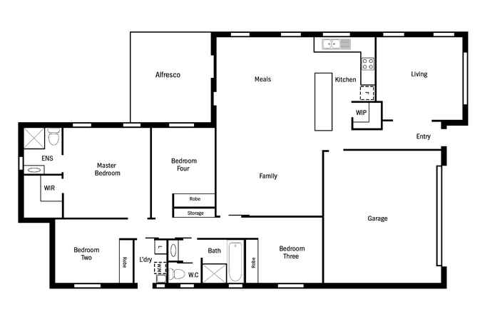
Positioned on a approx.. 520m2 block, the functional floorplan and outdoor space is sure to tick a lot of boxes for one lucky buyer.
The large open plan Kitchen, family and meals area in the centre of the home provides a very large space for the family to gather and also opens up nicely onto the alfresco area under the roofline. The kitchen includes a large island bench, 40mm stone bench tops, walk in panty and gas cooktop.
As you enter the property, you have a good sized formal lounge with glass sliding door and built in shelving.
All of the bedrooms are at the rear of the home as well as a three way bathroom, which includes a bath, separate toilet and separate basin. The master bedroom is an excellent size and includes a walk in wardrobe and ensuite. The other three bedrooms are also a good size and include built in wardrobes.
The home is positioned nicely on the block to allow for some good outdoor space as well as an alfresco area under the roofline.
Other features include solar panales, solar hot water, partition blinds, ducted reverse cycle heating and cooling and curtains and blinds just to name a few.
Features:
• Master bedroom with walk in wardrobe
• Ensuite
• Three additional bedrooms with built in wardrobes
• Open plan Kitchen
• 40mm Stone benchtops in Kitchen
• Gas Cooktop
• Dishwasher
• Formal lounge
• Family and meals area
• Bathroom with separate toilet and basin
• Alfresco under roof line
• 10 Solar panels
• Ducted reverse cycle heating and cooling
• Double garage with internal access
• Side access to backyard
EER: 5
Built: 2015
Living: 162m2 (approx..)
Garage: 36m2 (approx..)
Block : 520m2 (approx..)
Rates: $709 pq (approx..)
Positioned on a approx.. 520m2 block, the functional floorplan and outdoor space is sure to tick a lot of boxes for one lucky buyer.
The large open plan Kitchen, family and meals area in the centre of the home provides a very large space for the family to gather and also opens up nicely onto the alfresco area under the roofline. The kitchen includes a large island bench, 40mm stone bench tops, walk in panty and gas cooktop.
As you enter the property, you have a good sized formal lounge with glass sliding door and built in shelving.
All of the bedrooms are at the rear of the home as well as a three way bathroom, which includes a bath, separate toilet and separate basin. The master bedroom is an excellent size and includes a walk in wardrobe and ensuite. The other three bedrooms are also a good size and include built in wardrobes.
The home is positioned nicely on the block to allow for some good outdoor space as well as an alfresco area under the roofline.
Other features include solar panales, solar hot water, partition blinds, ducted reverse cycle heating and cooling and curtains and blinds just to name a few.
Features:
• Master bedroom with walk in wardrobe
• Ensuite
• Three additional bedrooms with built in wardrobes
• Open plan Kitchen
• 40mm Stone benchtops in Kitchen
• Gas Cooktop
• Dishwasher
• Formal lounge
• Family and meals area
• Bathroom with separate toilet and basin
• Alfresco under roof line
• 10 Solar panels
• Ducted reverse cycle heating and cooling
• Double garage with internal access
• Side access to backyard
EER: 5
Built: 2015
Living: 162m2 (approx..)
Garage: 36m2 (approx..)
Block : 520m2 (approx..)
Rates: $709 pq (approx..)
LOCATION8 Bedbrook Street Coombs ACT 2611 |
DETAILS
|
OFFICE & AGENT(S)
VIEW
Wednesday 26.02.2020 | 11:00am - 11:30am |
Just like back in the day when the Flinstones captured our attention, so will this four bedroom, two bathroom family home in Coombs.
Positioned on a approx.. 520m2 block, the functional floorplan and outdoor space is sure to tick a lot of boxes for one lucky buyer.
The large open plan Kitchen, family and meals area in the centre of the home provides a very large space for the family to gather and also opens up nicely onto the alfresco area under the roofline. The kitchen includes a large island bench, 40mm stone bench tops, walk in panty and gas cooktop.
As you enter the property, you have a good sized formal lounge with glass sliding door and built in shelving.
All of the bedrooms are at the rear of the home as well as a three way bathroom, which includes a bath, separate toilet and separate basin. The master bedroom is an excellent size and includes a walk in wardrobe and ensuite. The other three bedrooms are also a good size and include built in wardrobes.
The home is positioned nicely on the block to allow for some good outdoor space as well as an alfresco area under the roofline.
Other features include solar panales, solar hot water, partition blinds, ducted reverse cycle heating and cooling and curtains and blinds just to name a few.
Features:
• Master bedroom with walk in wardrobe
• Ensuite
• Three additional bedrooms with built in wardrobes
• Open plan Kitchen
• 40mm Stone benchtops in Kitchen
• Gas Cooktop
• Dishwasher
• Formal lounge
• Family and meals area
• Bathroom with separate toilet and basin
• Alfresco under roof line
• 10 Solar panels
• Ducted reverse cycle heating and cooling
• Double garage with internal access
• Side access to backyard
EER: 5
Built: 2015
Living: 162m2 (approx..)
Garage: 36m2 (approx..)
Block : 520m2 (approx..)
Rates: $709 pq (approx..)
Positioned on a approx.. 520m2 block, the functional floorplan and outdoor space is sure to tick a lot of boxes for one lucky buyer.
The large open plan Kitchen, family and meals area in the centre of the home provides a very large space for the family to gather and also opens up nicely onto the alfresco area under the roofline. The kitchen includes a large island bench, 40mm stone bench tops, walk in panty and gas cooktop.
As you enter the property, you have a good sized formal lounge with glass sliding door and built in shelving.
All of the bedrooms are at the rear of the home as well as a three way bathroom, which includes a bath, separate toilet and separate basin. The master bedroom is an excellent size and includes a walk in wardrobe and ensuite. The other three bedrooms are also a good size and include built in wardrobes.
The home is positioned nicely on the block to allow for some good outdoor space as well as an alfresco area under the roofline.
Other features include solar panales, solar hot water, partition blinds, ducted reverse cycle heating and cooling and curtains and blinds just to name a few.
Features:
• Master bedroom with walk in wardrobe
• Ensuite
• Three additional bedrooms with built in wardrobes
• Open plan Kitchen
• 40mm Stone benchtops in Kitchen
• Gas Cooktop
• Dishwasher
• Formal lounge
• Family and meals area
• Bathroom with separate toilet and basin
• Alfresco under roof line
• 10 Solar panels
• Ducted reverse cycle heating and cooling
• Double garage with internal access
• Side access to backyard
EER: 5
Built: 2015
Living: 162m2 (approx..)
Garage: 36m2 (approx..)
Block : 520m2 (approx..)
Rates: $709 pq (approx..)
















