Private and comfortable renovated home
Sold
Location
Lot 9/18 Currey Street
Gowrie ACT 2904
Details
3
1
1
EER: 2.5
House
Sold
Rates: | $1,972.00 annually |
Land area: | 625 sqm (approx) |
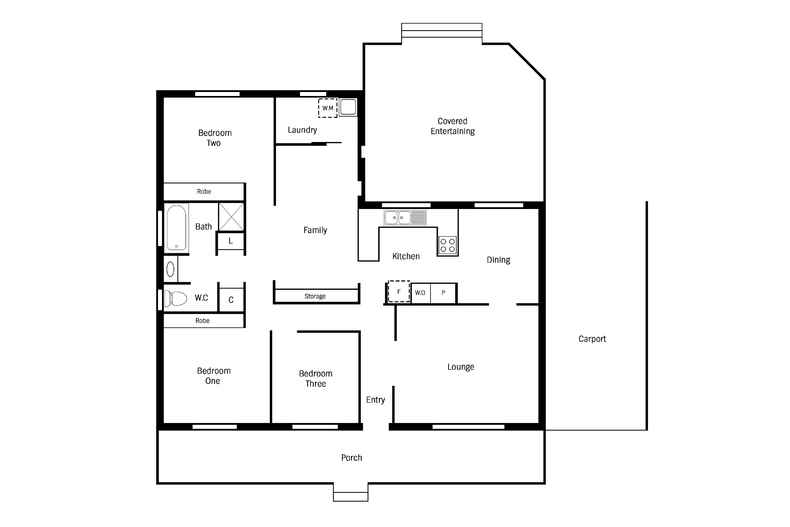
Simply stunning, this renovated three bedroom family home ticks all the boxes. Offering a spacious open plan living area plus a generous family room which is central to the home. The gourmet renovated kitchen with electric cooking, dishwasher and plenty of cupboard space is bright and spacious. The shiny timber floors through the kitchen and family room lead to the huge covered entertainers delight deck featuring an outdoor kitchen complete with BBQ and built-in-fridge. The deck is the perfect setting for family BBQ's with views over the easy care back garden with irrigation system. Reverse cycle heating and cooling throughout the home provides year round comfort. Car accommodation is a single partially enclosed carport with additional off street parking to the front of the home. Neat, sweet and complete - all the hard work has been done leaving you a lovely home to enjoy.
* Three bedrooms, two with built in robes
* Updated kitchen with dishwasher
* Open plan living
* Neat gardens with huge covered decking
* Stainless steel outdoor kitchen with built in BBQ and fridge
* Seated fire pit to the backyard
* Reverse cycle heating & cooling
* Single partially enclosed carport
* Additional off street parking
* Fire pit entertaining area
* Convenient location close to schools, shops and amenities
Read More* Three bedrooms, two with built in robes
* Updated kitchen with dishwasher
* Open plan living
* Neat gardens with huge covered decking
* Stainless steel outdoor kitchen with built in BBQ and fridge
* Seated fire pit to the backyard
* Reverse cycle heating & cooling
* Single partially enclosed carport
* Additional off street parking
* Fire pit entertaining area
* Convenient location close to schools, shops and amenities
Inspect
Contact agent
Listing agent
Simply stunning, this renovated three bedroom family home ticks all the boxes. Offering a spacious open plan living area plus a generous family room which is central to the home. The gourmet renovated kitchen with electric cooking, dishwasher and plenty of cupboard space is bright and spacious. The shiny timber floors through the kitchen and family room lead to the huge covered entertainers delight deck featuring an outdoor kitchen complete with BBQ and built-in-fridge. The deck is the perfect setting for family BBQ's with views over the easy care back garden with irrigation system. Reverse cycle heating and cooling throughout the home provides year round comfort. Car accommodation is a single partially enclosed carport with additional off street parking to the front of the home. Neat, sweet and complete - all the hard work has been done leaving you a lovely home to enjoy.
* Three bedrooms, two with built in robes
* Updated kitchen with dishwasher
* Open plan living
* Neat gardens with huge covered decking
* Stainless steel outdoor kitchen with built in BBQ and fridge
* Seated fire pit to the backyard
* Reverse cycle heating & cooling
* Single partially enclosed carport
* Additional off street parking
* Fire pit entertaining area
* Convenient location close to schools, shops and amenities
Read More* Three bedrooms, two with built in robes
* Updated kitchen with dishwasher
* Open plan living
* Neat gardens with huge covered decking
* Stainless steel outdoor kitchen with built in BBQ and fridge
* Seated fire pit to the backyard
* Reverse cycle heating & cooling
* Single partially enclosed carport
* Additional off street parking
* Fire pit entertaining area
* Convenient location close to schools, shops and amenities

Location
Lot 9/18 Currey Street
Gowrie ACT 2904
Details
3
1
1
EER: 2.5
House
Sold
Rates: | $1,972.00 annually |
Land area: | 625 sqm (approx) |
Simply stunning, this renovated three bedroom family home ticks all the boxes. Offering a spacious open plan living area plus a generous family room which is central to the home. The gourmet renovated kitchen with electric cooking, dishwasher and plenty of cupboard space is bright and spacious. The shiny timber floors through the kitchen and family room lead to the huge covered entertainers delight deck featuring an outdoor kitchen complete with BBQ and built-in-fridge. The deck is the perfect setting for family BBQ's with views over the easy care back garden with irrigation system. Reverse cycle heating and cooling throughout the home provides year round comfort. Car accommodation is a single partially enclosed carport with additional off street parking to the front of the home. Neat, sweet and complete - all the hard work has been done leaving you a lovely home to enjoy.
* Three bedrooms, two with built in robes
* Updated kitchen with dishwasher
* Open plan living
* Neat gardens with huge covered decking
* Stainless steel outdoor kitchen with built in BBQ and fridge
* Seated fire pit to the backyard
* Reverse cycle heating & cooling
* Single partially enclosed carport
* Additional off street parking
* Fire pit entertaining area
* Convenient location close to schools, shops and amenities
Read More* Three bedrooms, two with built in robes
* Updated kitchen with dishwasher
* Open plan living
* Neat gardens with huge covered decking
* Stainless steel outdoor kitchen with built in BBQ and fridge
* Seated fire pit to the backyard
* Reverse cycle heating & cooling
* Single partially enclosed carport
* Additional off street parking
* Fire pit entertaining area
* Convenient location close to schools, shops and amenities
Inspect
Contact agent










































